683 000 zł
Komandorskie Wzgórze-odświeżone-miejsce podziemne
ul. gen. Marii Wittekówny, Oksywie, Gdynia, pomorskie
- Liczba pokoi
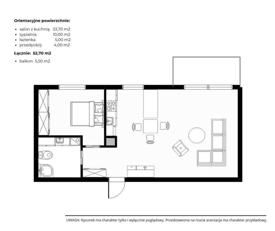
- 2 pokoje
- Powierzchnia
- 52.7 m²
- Cena za metr kwadratowy
- 12 960 zł/m²
- Piętro
- 1 piętro
Zobacz opis ogłoszenia
Zobacz opis ogłoszenia
Wyjątkowe mieszkanie - pięknie położone, całe odświeżone!Kameralna inwestycja KOMANDORSKIE WZGÓRZE- Invest Komfort.OPIS MIESZKANIA – Komfort i ŚwieżośćNa sprzedaż przestronne i funkcjonalne 2-pokojowe...

