949 000 zł
Dom z dużym słonecznym ogrodem - zachodnia ekspozycja!
ul. Szafirowa, Lniska, Żukowo, kartuski, pomorskie
- Liczba pokoi
- 4 pokoje
- Powierzchnia
- 149 m²
- Cena za metr kwadratowy
- 6369 zł/m²
Zobacz opis ogłoszenia
Zobacz opis ogłoszenia
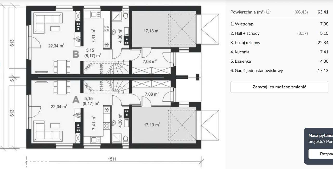
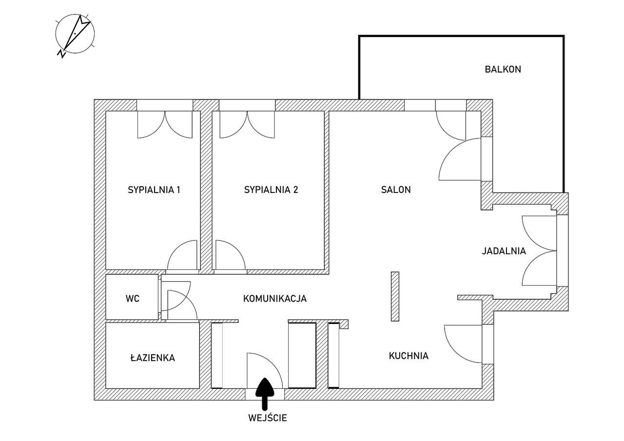
Na sprzedaż wygodny dom w zabudowie bliźniaczej, z dużym ogrodem z idealną ekspozycją od strony południowo zachodniej. Dom ma powierzchnię całkowitą 141 m2 (124 m2 powierzchni mieszkalnej plus garaż 1...

